Нега 1

Нега 1 6.0 x 6.8 34,12 м²
Характеристики
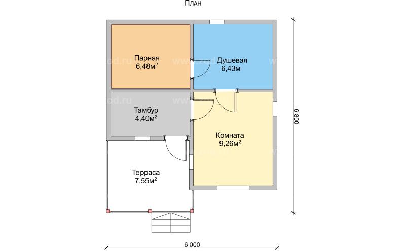
  • Общая площадь: 34,12 м2
  • Площадь застройки: 39,09 м2
  • Размеры: 6.0 x 6.8 м
  • Срок строительства: 12-15 дней

Выберите технологию

Выберите комплектацию

1249800 руб.
1659800 руб.
Цена
1 249 800 руб.
Цены в вашем регионе могут отличаться от представленных на сайте

Главные преимущества этой бани - более просторные душевая и парная. Любителям париться в компании домочадцев или друзей стоит обратить внимание на эту модель. В ней также есть комната отдыха, где можно организовать уютный уголок. Наличие тамбура позволяет осуществлять топку из смежного помещения, что является дополнительным удобством для владельцев этой бани.

Характеристики
  • Общая площадь: 34,12 м2
  • Площадь застройки: 39,09 м2
  • Размеры: 6.0 x 6.8 м
  • Срок строительства: 12-15 дней
Базовая
Посмотреть полное описание
Зимняя
Посмотреть полное описание
Фундамент опорные столбы из бетонных блоков Фундамент Винтовые сваи на глубину промерзания
Полы пол представляет собой многослойную конструкцию 142 мм. Утепление 50 мм. Настил пола - доска 21 мм. Пол представляет собой усиленную многослойную конструкцию 205 мм. Утепление 150 мм. Настил пола - доска 35 мм. Конструкция пола обработана огнебиозащитой
Стены представляют собой многослойную каркасную конструкцию 170 мм., утепление - 150 мм., обшивка - вагонка Стены представляют собой многослойную каркасную конструкцию 170 мм. Утепление 150 мм., Обшивка - вагонка
Потолки отделаны вагонкой, утепление 50 мм, утепление в парной 150 мм Парная Стены и потолок обшиты осиновой вагонкой, полки с настилом из осины, дверь стеклянная
Кровля Металлическая оцинкованная Потолки Утепление - 150 мм.
Окна Пластиковые однокамерные Кровля Металлическая оцинкованная
Двери Деревянные Окна Пластиковые двухкамерные
Двери Деревянные
1 249 800 руб.
1 659 800 руб.
При строительстве бани в комплектации "Зимняя", вы получаете свайно-винтовой фундамент и печь в подарок!
Более подробную информацию Вы можете уточнить у менеджеров по телефону +7 495 445-90-85 или на выставочных площадках.
Акция не распространяется на бани 3х4 м и 4х4 м.

Характеристики
  • Общая площадь: 34,12 м2
  • Площадь застройки: 39,09 м2
  • Размеры: 6.0 x 6.8 м
  • Срок строительства: 12-15 дней

Выберите технологию

Выберите комплектацию

Цена
1 249 800 руб.
Цены в вашем регионе могут отличаться от представленных на сайте
Обратный звонок
* заполните обязательно